Detached 2-Bed ADU

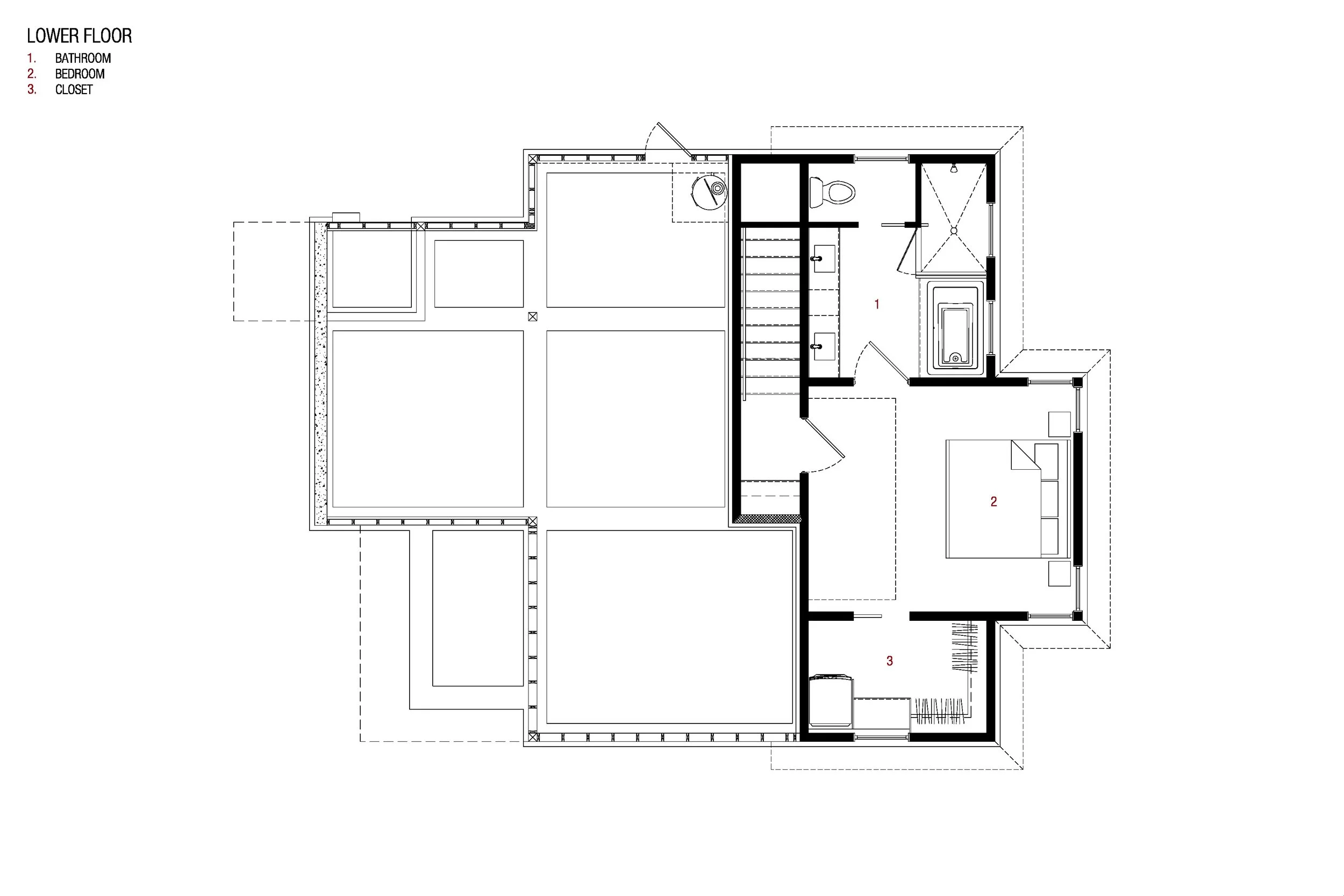
This 2-bedroom detached ADU is expertly designed to harmonize with sloping terrain. To maximize the breathtaking hillside views, the main living spaces and a cozy breakfast nook are thoughtfully situated on the upper floor. Finished with a beautiful exterior blend of natural stone, stucco, and classic siding, this charming build balances rustic elegance with modern comfort.

Previous
Previous

Detached 2-Bed ADU + 1 Car Garage

Next
Next

Detached 4-Bed ADU